Skip to main content
Residences

Rooms

Our Rooms

Use our furniture or bring your own. Each room is equipped with cable television; basic cable is included in the rent, telephone outlets for private phones, individual heat control, and there is no extra charge to use your energy efficient air conditioners.

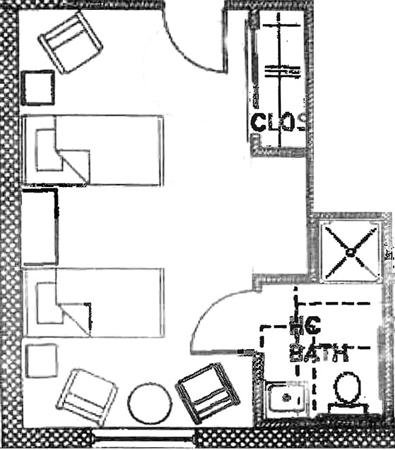
Double Room Diagram

Social


Assisted Living Facility

Address


85 Ethan St
Warwick, RI 02888
P: (401) 781-5460
E: This email address is being protected from spambots. You need JavaScript enabled to view it.

Our Location


Copyright Ethan Place Assisted Living
All Rights Reserved
Site Designed by MM5 Digital Marketing